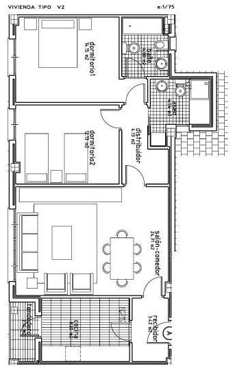
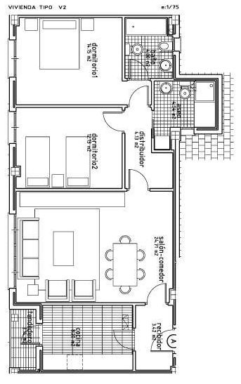
100.000 euros, that magic number that has grabbed everyone’s attention thanks to the Cypriot crisis. What does this money means in a large european metropolitan area like Madrid? with that, you can buy a very small appartment in central Madrid whose conservation condition should be verified, or in one of the areas hastily developed during the 1960s. But if you want to buy something larger, new, to go live with your family, this could be an example of what you could get: 106 sq m of built up area (comprising ancillary elements, garage and a storage) in Valdemoro. The appartment would be some 600 m away from the regional train station, and from there you would have a 41 min ride to Sol, considered usually the central core of Madrid. Besides, the building has a swiming pool (far from irrelevant with summers over 40 degrees celsius…). Data obtained from idealista.com this week. 
100.000 euros, that magic number that has grabbed everyone’s attention thanks to the Cypriot crisis. What does this money means in a large european metropolitan area like Madrid? with that, you can buy a very small appartment in central Madrid whose conservation condition should be verified, or in one of the areas hastily developed during…



Leave a comment